事業用貸工場・貸倉庫
曙貸工場 3号
| 物件名 | 曙貸工場 3号 | ||
|---|---|---|---|
| 物件区分 | 事業用 | 物件種別 | 貸工場・貸倉庫 |
| 賃料 | 30.8万円 | ||
| 敷金 | - | 礼金 | - |
| 保証金 | 184.8万円 | 共益費 | 5,500円 |
| 更新料 | 308,000円 | ||
| 住所 | 京都市伏見区竹田西段川原町149 [地図] | ||
| 交通 | 近鉄京都線 竹田 徒歩4分 地下鉄烏丸線 竹田 徒歩4分 |
||
| 契約年数 | 5年 | 契約種別 | 普通賃貸借 |
| その他費用 | 水道代3,300円(精算あり) | ||
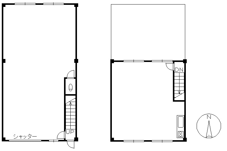
| 専用面積 | 144.95㎡(43.85坪) | 階数 | 2階建て | ||
|---|---|---|---|---|---|
| 築年月 | 1998年7月 | 構造(主要) | 鉄骨造 | ||
| 上水道 | 公共上水道 | 下水道 | 公共下水道 | ||
| 電気 | 有り | 駐車場 | 有り(無料) | ||
| 用途地域 | 準工業地域 | 対応業種 | 軽作業可 | ||
| 現況 | 空 | 引渡し | 即 | ||
| 取引形態 | 専任 | ||||
| 備 考 |
業種:相談 建物間口:約6.5m 奥行:約14m 2階間口:約6.5m 奥行:約8.3mシャッター高 約3m 巾 約2.8m 天井高 約4m 梁下 約3.5m |
|---|---|
| 情報登録日 | 2022-03-01 |
周辺地図
【曙貸工場 3号】のお問合わせはディランド山京リースまで
0774-20-51159:00~18:00 祝・日曜定休



















