事業用貸工場・貸倉庫
城陽久世貸工場
| 物件名 | 城陽久世貸工場 | ||
|---|---|---|---|
| 物件区分 | 事業用 | 物件種別 | 貸工場・貸倉庫 |
| 賃料 | 38.5万円 | ||
| 敷金 | - | 礼金 | - |
| 保証金 | 210万円 | 共益費 | - |
| 更新料 | 385,000円 | ||
| 住所 | 城陽市久世八丁11番1 [地図] | ||
| 交通 | 近鉄京都線 寺田 27 |
||
| 契約年数 | 5年 | 契約種別 | 普通賃貸借 |
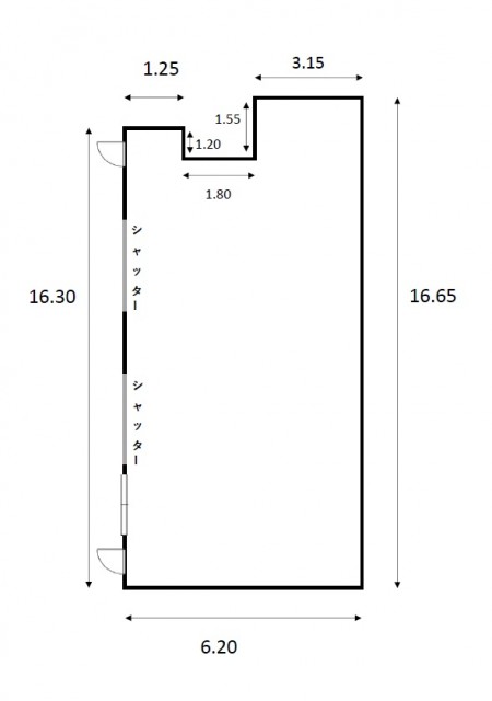
| 専用面積 | 100㎡(30.25坪) | 階数 | 1階建て | ||
|---|---|---|---|---|---|
| 築年月 | 1978年4月 | 構造(主要) | 鉄骨造 | ||
| 上水道 | 公共上水道 | 下水道 | 公共下水道 | ||
| 電気 | 有り | 用途地域 | 市街化調整区域 | ||
| 現況 | 使用中 | 引渡し | 相談 | ||
| 取引形態 | 専任 | ||||
| 備 考 |
業種:相談 シンク、トイレ、手洗い器、照明、エアコン、換気扇、出入口扉、シャッターの維持管理・交換は借主負担 |
|---|---|
| 情報登録日 | 2026-03-07 |
周辺地図
【城陽久世貸工場】のお問合わせはディランド山京リースまで
0774-20-51159:00~18:00 祝・日曜定休



