事業用貸工場・貸倉庫
北端町貸倉庫
| 物件名 | 北端町貸倉庫 | ||
|---|---|---|---|
| 物件区分 | 事業用 | 物件種別 | 貸工場・貸倉庫 |
| 賃料 | 88万円 | ||
| 敷金 | - | 礼金 | - |
| 保証金 | 400万円 | 共益費 | - |
| 更新料 | 880,000円 | ||
| 住所 | 京都市伏見区北端町54 [地図] | ||
| 交通 | 近鉄京都線 伏見 徒歩13分 |
||
| 契約年数 | 5年 | 契約種別 | 普通賃貸借 |
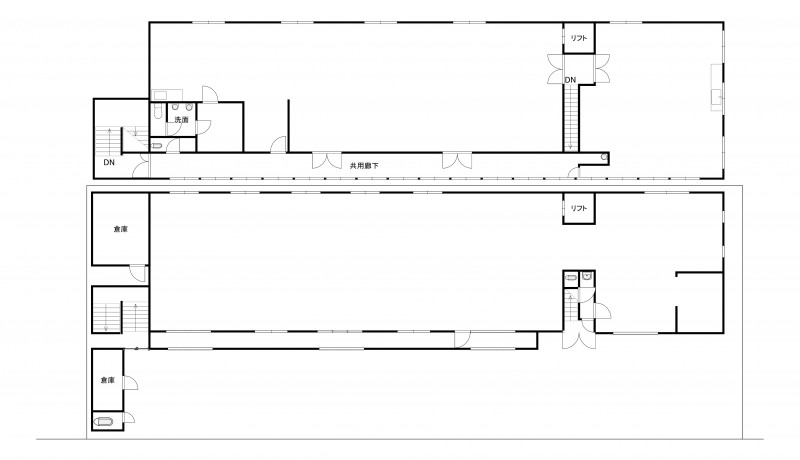
| 専用面積 | 594㎡(179.69坪) | 階数 | 2階建て |
|---|---|---|---|
| 築年月 | 1983年5月 | 構造(主要) | 鉄骨造 |
| 上水道 | 公共上水道 | 下水道 | 公共下水道 |
| 電気 | 有り | 駐車場 | 有り(無料) |
| 用途地域 | 準工業地域 | 現況 | 空 |
| 引渡し | 相談 | 取引形態 | 専任 |
| 備 考 |
業種:相談 リフトは残置物につき貸主は修繕義務を負いません。 1階天井髙3850 ※案内は日程調整必要 |
|---|---|
| 情報登録日 | 2026-02-12 |
周辺地図
【北端町貸倉庫】のお問合わせはディランド山京リースまで
0774-20-51159:00~18:00 祝・日曜定休



























