事業用貸工場・貸倉庫
久御山佐山貸工場
| 物件名 | 久御山佐山貸工場 | ||
|---|---|---|---|
| 物件区分 | 事業用 | 物件種別 | 貸工場・貸倉庫 |
| 賃料 | 33万円 | ||
| 敷金 | - | 礼金 | - |
| 保証金 | 180万円 | 共益費 | - |
| 更新料 | 330,000円 | ||
| 住所 | 京都府久世郡久御山町佐山新開地267-1 [地図] | ||
| 交通 | 京阪本線 大久保 徒歩46分 下津屋口 徒歩6分 |
||
| 契約年数 | 5年 | 契約種別 | 普通賃貸借 |
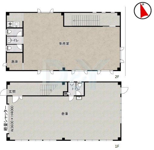
| 専用面積 | 194.54㎡(58.85坪) | 階数 | 2階建て | ||
|---|---|---|---|---|---|
| 築年月 | 2000年 | 構造(主要) | 鉄骨造 | ||
| 上水道 | 公共上水道 | 下水道 | 公共下水道 | ||
| 電気 | 有り | 駐車場 | 有り(無料) | ||
| 用途地域 | 工業専用地域 | 現況 | 退去予定 | ||
| 引渡し | 指定有 | 引渡日 | 2026年4月以降 | ||
| 取引形態 | 専任 | ||||
| 備 考 |
業種:相談 建築年月不詳 設備:電動シャッター 雨漏れ以外すべての設備(電動シャッター除く)の維持管理は借主負担 |
|---|---|
| 情報登録日 | 2026-02-09 |
周辺地図
【久御山佐山貸工場】のお問合わせはディランド山京リースまで
0774-20-51159:00~18:00 祝・日曜定休




