事業用貸工場・貸倉庫
深草西浦町貸倉庫
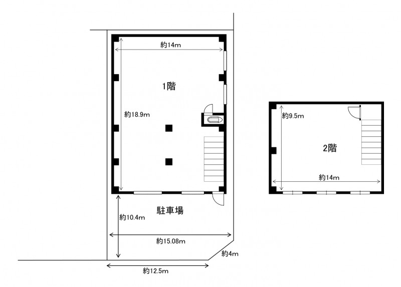
店舗利用可の駐車場付倉庫
| 物件名 | 深草西浦町貸倉庫 | ||
|---|---|---|---|
| 物件区分 | 事業用 | 物件種別 | 貸工場・貸倉庫 |
| 賃料 | 79.2万円 | ||
| 敷金 | - | 礼金 | - |
| 保証金 | 237.6万円 | 共益費 | - |
| 更新料 | 792,000円 | ||
| 住所 | 京都市伏見区深草西浦町2丁目82番 [地図] | ||
| 交通 | 地下鉄烏丸線 くいな橋 徒歩10分 |
||
| 契約年数 | 5年 | 契約種別 | 普通賃貸借 |
| 専用面積 | 396.9㎡(120.06坪) | 階数 | 2階建て |
|---|---|---|---|
| 築年月 | 1984年11月 | 構造(主要) | 鉄骨造 |
| 上水道 | 公共上水道 | 下水道 | 公共下水道 |
| 電気 | 有り | 駐車場 | 有り(無料) |
| 用途地域 | 第一種住居地域 | 現況 | 空 |
| 引渡し | 即 | 取引形態 | 専任 |
| 備 考 |
業種:相談 ・飲食可(重飲食は要相談) ・現状有姿での引き渡し ・入居中につき内覧時は日程調整要 ・エアコン、照明等残置物あり ・シャッター南側大:高さ4m、幅4m、南側小:高さ3m、幅3m、東側2か所:高さ2.5m、幅2m ・雨漏り以外の修理、取替、維持管理は借主負担 |
|---|---|
| 情報登録日 | 2025-12-11 |
周辺地図
【深草西浦町貸倉庫】のお問合わせはディランド山京リースまで
0774-20-51159:00~18:00 祝・日曜定休


















