事業用貸店舗・貸事務所(一部)
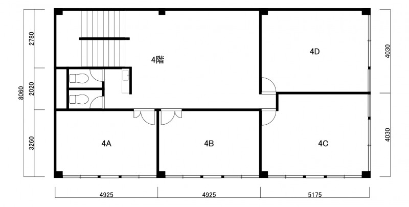
寺町綾小路ビル 4B号
| 物件名 | 寺町綾小路ビル 4B号 | ||
|---|---|---|---|
| 物件区分 | 事業用 | 物件種別 | 貸店舗・貸事務所(一部) |
| 賃料 | 6.05万円 | ||
| 敷金 | - | 礼金 | - |
| 保証金 | 30万円 | 共益費 | 5,500円 |
| 更新料 | 60,500円 | ||
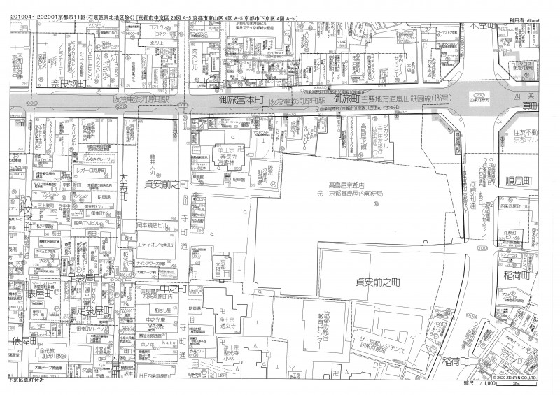
| 住所 | 京都市下京区貞安前之町586 [地図] | ||
| 交通 | 阪急京都線 河原町 徒歩4分 |
||
| 契約年数 | 5年 | 契約種別 | 普通賃貸借 |
| 専用面積 | 20.98㎡(6.35坪) | 階数 | 4階建て 4階部分 |
|---|---|---|---|
| 築年月 | 1979年9月 | 構造(主要) | 鉄骨造 |
| 上水道 | 公共上水道 | 下水道 | 公共下水道 |
| 電気 | 有り | 用途地域 | 商業地域 |
| 現況 | 退去予定 | 引渡し | 指定有 |
| 引渡日 | 2026年6月中旬予定 | 取引形態 | 専任 |
| 備 考 | 業種:相談 |
|---|---|
| 情報登録日 | 2022-08-09 |
周辺地図
【寺町綾小路ビル 4B号】のお問合わせはディランド山京リースまで
0774-20-51159:00~18:00 祝・日曜定休








