事業用貸工場・貸倉庫
殿城町貸倉庫
| 物件名 | 殿城町貸倉庫 | ||
|---|---|---|---|
| 物件区分 | 事業用 | 物件種別 | 貸工場・貸倉庫 |
| 賃料 | 15.4万円 | ||
| 敷金 | - | 礼金 | - |
| 保証金 | 84万円 | 共益費 | - |
| 更新料 | 154,000円 | ||
| 住所 | 京都市南区久世殿城町50番地10 [地図] | ||
| 交通 | JR東海道線 向日 徒歩9分 |
||
| 契約年数 | 5年 | 契約種別 | 普通賃貸借 |
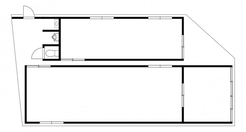
| 専用面積 | 57.06㎡(17.26坪) | 階数 | 1階建て | ||
|---|---|---|---|---|---|
| 築年月 | 2005年8月 | 構造(主要) | 木造 | ||
| 駐車場 | 有り(無料) | 用途地域 | 準工業地域 | ||
| 現況 | 空 | 引渡し | 即 | ||
| 取引形態 | 専任 | ||||
| 備 考 |
業種:相談 近隣住宅地につき夜間早朝の作業等禁止 |
|---|---|
| 情報登録日 | 2021-11-22 |
周辺地図
【殿城町貸倉庫】のお問合わせはディランド山京リースまで
0774-20-51159:00~18:00 祝・日曜定休










